3086/2652/ODS - Dom - Sprzedaż, Plewiska
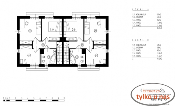
> PROMOCJA JESIENNA /9500 mkw ! Polecamy na sprzedaż nową ofertę 1 domu w zabudowie bliźniaczej [ 2 lokale mieszkalne] położonego w cichej i spokojnej części Plewisk na kameralnym, zamkniętym mikroosiedlu 4 lokali bliźniaczych. W pierwszym etapie budowy mamy do dyspozycji 2 lokale[segment prawy/lewy ] o powierzchni całkowitej 110mkw [ powierzchnia użytkowa 94,5mkw] . Bardzo funkcjonalny układ. Parter: przestronny salon z aneksem kuchennym oraz wyjściem na taras/atrium ogrodowe, wiatrołap oraz Łazienka/WC . Wysokość 2,9m. Na piętrze bez skosów !!! [ wysokość 2,7m] mamy do dyspozycji 3 niezależne pokoje oraz łazienkę z WC. Dodatkowo do własnej adaptacji poddasze/strych o powierzchni po podłodze około 30m. Do każdego segmentu przynależą 2 miejsca postojowe. Na całym parterze i piętrze ogrzewanie podłogowe. Zapraszam na prezentację. Zakończenie Inwestycji - przełom I kwartał 2026. Przedmiotem oferty jest segment prawy, segment lewy z nieco większym ogrodem jest w cenie 925.000zł.
Kontakt: Krzysztof Marcinowski tel: 505766735 kmarcinowski@brokerzy24.com.pl nr licencji pośrednika odpowiedzialnego: 11477 "Powyższy opis ma charakter informacyjny i nie stanowi oferty w rozumieniu przepisów kodeksu cywilnego"
Kontakt: Krzysztof Marcinowski tel: 505766735 kmarcinowski@brokerzy24.com.pl nr licencji pośrednika odpowiedzialnego: 11477 "Powyższy opis ma charakter informacyjny i nie stanowi oferty w rozumieniu przepisów kodeksu cywilnego"
Drukuj
Informacje
| Numer | 3086/2652/ODS |
| Miasto | Plewiska |
| Powierzchnia | 95 m2 |
| Powierzchnia działki | 280 m2 |
| Powierzchnia całkowita | 95 m2 |
| Liczba pokoi | 4 |
| Ilość pięter | 1 |
| Rok budowy | 2025 |
| Materiał ścierny | cegła |
| Liczba łazienek | 1 |
Cena:
899 999,00 zł
